SOLUZIONE INDIPENDENTE NEL CENTRO DEL PAESE

Riccione (Rimini) - zona Paese

Rif: F7
Condividi Linkedin Whatsapp Stampa
€ 550.000
Villa
130 Mq
4 Vani
Classe energetica A+
3 Camere
1 bagno
RICCIONE PAESE - Viale Formia 7 - Presentiamo in vendita casa indipendente, libera su quattro lati, in fase di ristrutturazione.
La struttura ha una superficie interna di 130 mq, e verrà ristrutturata con materiali di pregio, portando la struttura alla classe energetica "A".
Internamente l'immobile verrà suddivisio come segue:
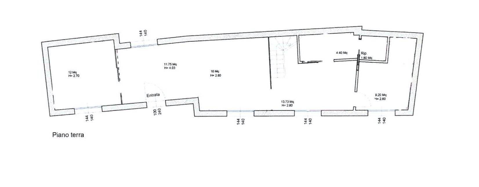
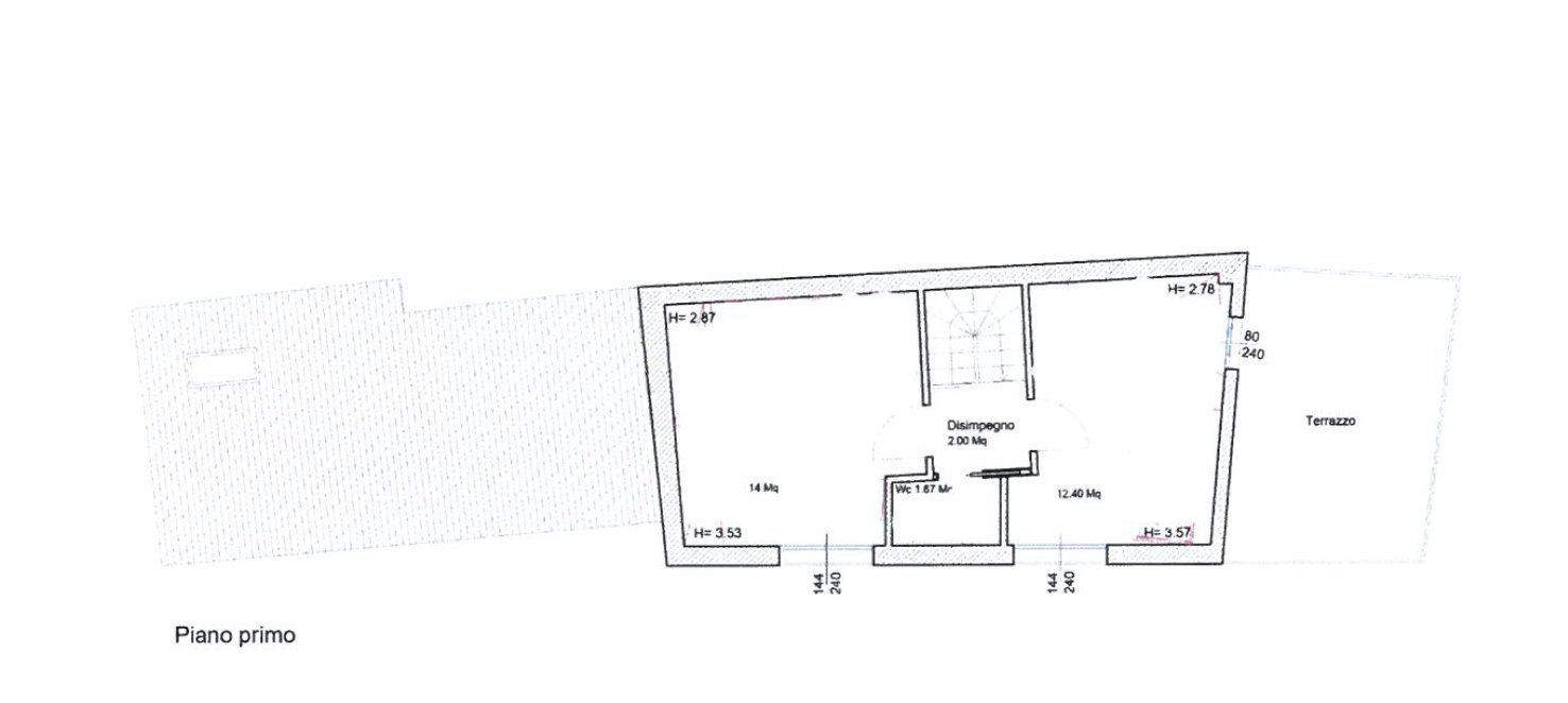
Al piano terra: Ingresso su ampio salone con cucina a vista e scala in design, due camere da letto, bagno e lavanderia; la scala interna consente l'accesso al piano superiore, dove troviamo la camera padronale con bagno, cabina armadio e balcone.
*In questa fase vi è la possibilità di personalizzare gli interni.

Albertini immobiliare Riccione
albertiniriccione.it

Dettaglio immobile

Contratto Vendita
Rif F7
Prezzo € 550.000
Provincia Rimini
Comune Riccione
Zona Paese
Indirizzo Viale Formia 7
Superficie 130 mq
Vani 4
Camere 3
Bagni 1
Classe energetica A+ (DL 192/2005)
EPI 175 kwh/m2 anno
Riscaldamento autonomo
Condizioni da ristrutturare
Anno di costruzione 2000
Ascensore no
Cucina a vista
Balcone si
Terrazza si

Consistenze

Descrizione Superficie Sup. comm.
Principali
Immobile - piano terra 130 Mq 130 Mqc
Totale 130 Mqc

Planimetrie

Richiedi maggiori informazioni

Autorizzazione al trattamento dei dati personali+
Dichiaro di aver letto l'informativa sulla privacy ed accetto le condizioni d'utilizzo del servizio.
Riempi il campo con il codice riportato nell'immagine*
Codice Captcha
FIMAA
Chiamaci Contattaci